3 комнатная квартира с ремонтом премиум-класса

Квартира
Продажа
Гродно

19-04-2026 14:45

414 624 руб.
149 700 $
2265 $/м2
127 852 €
Комнат: 3
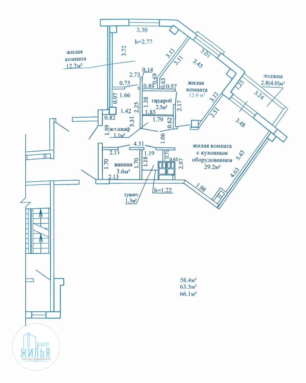
Общая площадь: 66.1 м2
Жилая площадь: 58.1 м2
Площадь кухни: 29.2 м2
Договор: 44/4 от 18.04.2026 г.
Этаж:8
Этажей в доме: 14
Год постройки здания: 2025
Материал стен:Монолит
Балкон: Лоджия
Санузел: Раздельный
Ремонт: Хороший ремонт

3 комнатная квартира с ремонтом премиум-класса (евротрёшка) в монолитном доме 2025 года постройки по ул. Соломовой 157Б. В квартире выполнен качественный дизайнерский ремонт с узаконенной перепланировкой, где продумана каждая деталь для комфорта и эстетики. Комфортная планировка: совмещённая кухня-гостиная (29.2 м.кв.) с выходом на лоджию, 2 спальни (12.9 и 12.7), в мастер-спальне французские окна в пол, гардеробная, раздельные санузлы.
Высота потолков — 2,77 м, увеличенные дверные проёмы, межкомнатные двери скрытого монтажа изготовлены на заказ с учётом нестандартной высоты полотна — 2.5 м, окрашены в цвет стен и дополнены дизайнерскими ручками Morelli со скрытым фиксатором и скрытыми замками в каждом помещении, что создаёт ощущение простора и премиальности интерьера. Установлены немецкие натяжные потолки BAUF с экологическим классом А+, парящий теневой европрофиль Fly 04 с подсветкой.
Для максимального комфорта предусмотрены электрокарнизы с управлением от пульта и голосового помощника Алиса, а также инверторный кондиционер с управлением с пульта или через Алису. Освещение реализовано на современной магнитной трековой системе.
Вся мебель в квартире сделана по индивидуальному заказу.
Кухня, шкафы, гардеробная, выполнены из МДФ-панелей Egger одного вида во всей квартире, объединяя пространство в единую целостную картину, фурнитура с доводчиками. Встроенная бытовая техника включает индукционную варочную поверхность, духовой шкаф, СВЧ-печь, посудомоечную машину 45 см шириной и холодильник. Предусмотрен удобный американский шкаф для хранения. Установлен фильтр питьевой воды Аквабрайт.
Выход на лоджию организован 2 распашными французскими окнами с ламинацией, наполняющими гостиную светом. На лоджии панорамное остекление, установлен инфракрасный теплый пол, предусмотрено освещение и розетка для гирлянды, это станет вашим любимым местом для утреннего кофе.
В санузлах использовалась коллекционная испанская плитка Geotiles Ceramica, душевая система Gappa, инсталляция AlcaPlast, теплый электрический пол, установлен бойлер Electrolux на 50 литров, в туалете предусмотрен рукомойник и гигиенический душ.
В мастер-спальне французское окно в пол с прекрасным видом, продуманная гардеробная (установлена скрытая вентиляция), косметический столик, несколько видов освещения. Кровать, диван, пуфик изготовлены на заказ из трендовой мебельной ткани букле «Teddy».
Во второй спальне организовано просторное рабочее место, места хранения организованы продуманными шкафами и стеллажами.
Половое покрытие — аквапанели, стены окрашены в модный в этом сезоне оттенок «coconut».
Входная дверь Деломет с прорезиненным покрытием в благородном темно-зеленом оттенке.
Для удобства реализованы мастер-выключатель и проходные выключатели, продуманы даже мелочи: розетки с выключателями для гирлянд в оконных проёмах.
В коридоре предусмотрены гардеробная быстрого доступа, полноценный шкаф для верхней одежды, хозяйственный шкаф.
Это современная квартира с технологичным оснащением, качественными материалами и продуманными инженерными решениями — идеальный вариант для комфортной жизни без дополнительных вложений.
Великолепный вид из окон во двор и на лес.
Данная квартира не оставит вас равнодушными.
Красивый подъезд отделан керамогранитом и мраморной крошкой. В подъезде 2 лифта: грузовой и пассажирский.
Безопасная дворовая территория (достаточное количество парковочных мест, вынесены за периметр), большое обилие детских площадок, игровых зон с прорезиненным покрытием, есть велобокс для хранения велосипедов, беседки для отдыха, по периметру и в подъезде установлено видеонаблюдение.
В доме находится детская амбулатория, аптека.
Великолепное расположение: в минутной доступности расположена 37 школа, рядом 4 гимназия и 2 детских сада, много магазинов: Алми, Копеечка, Хит, Евроопт, рукой подать до остановок общественного транспорта, аптеки, банки, остановки, кафе.
Отличный вариант для жизни.
Работаем с кредитами, лизингами, жилищным балансом.
Поможем продать вашу недвижимость для приобретения данной квартиры.
Дополнительная информация по телефону

ООО "Центр жилья"; УНП:591042500; Лицензия:выдана Министерством юстиции РБ от 27.02.2023 г. N 02240/456

Адрес: Гродно, улица Ольги Соломовой, 157Б

Контактное лицо: Екатерина П.

  • +375293111244
  • post@myrealtor.by
Связаться с нами