Дом в СТ Погораны

Дом
Продажа
Гродно

13-06-2025 13:51

160 248 руб.
55 000 $
388 $/м2
47 201 €
Комнат: 4
Количество уровней: 2
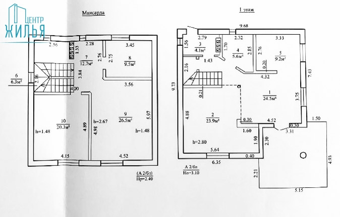
Общая площадь: 142,6 м2
Договор: 255/1 от 30.04.2025 от 30.04.2025 г.
Газ:Нет
Электричество: Нет
Канализация:Нет
Площадь участка, соток: 9,2
Материал стен:Блок
Отопление: Нет
Вода: Нет

Продаётся дом с баней в СТ ПОГОРАНЫ. Участок 9,19 соток, правильной прямоугольной формы, ровный по рельефу. До областного центра 15 км.
Дом под отделку. На участке из хоз. построек имеется: баня с предбанником и комнатой отдыха, а также пристроенный гараж.

Дом 2015 года постройки, 2 этажный (мансардный). Площадь 1 этажа — 67,3 м², мансардный этаж — 69.0 м², лестница — 6,3 м².
Форма собственности — частная. Дом зарегистрирован.
Фундамент высота 2,5 м, плотноармированный, толщина сяжки пола 1-го этажа — 100 см. Дом кирпично-блочный. Крыша — металопрофиль. Крыша утеплена. Окна стеклопакеты ПВХ.
Дом под внутреннюю отделку. Из коммуникаций: свет — подведен к дому, вода — нет, отопление — нет.

Баня 2015 года постройки, 2 этажа (мансардный) с пристроенным гаражом либо можно использовать как складское помещение. Площадь ~ 75 м². Разведена и подключена электрика и сантехника.

Забор по всему периметру участка.

Хорошие соседи.

За более подробной информацией просьба обращаться по телефону указанному в объявлении. Доступны все мессенджеры. Чистоту сделки гарантируем! Поможем продать вашу недвижимость для покупки данного варианта! Работаем с привлечение кредита.

ООО "Центр жилья"; УНП:591042500; Лицензия:выдана Министерством юстиции РБ от 27.02.2023 г. N 02240/456

Адрес: Коптёвский сельский Совет

Контактное лицо: Светлана С.

  • +375295898103
  • post@myrealtor.by
Связаться с нами