Просторная 3-з комнатная квартира на Наполеона Орды

Квартира
Продажа
Гродно

17-04-2026 9:23

243 734 руб.
88 000 $
1114 $/м2
75 157 €
Комнат: 3
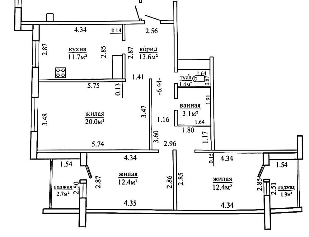
Общая площадь: 79,2 м2
Жилая площадь: 44,8 м2
Площадь кухни: 11,7 м2
Договор: 41/5 от 17.04.2026 г.
Этаж:3
Этажей в доме: 9
Год постройки здания: 2015
Материал стен:Панель
Балкон: Две лоджии
Санузел: Раздельный
Ремонт: Хороший ремонт

В продаже добротная трехкомнатная квартира по адресу Наполеона Орды, 17.
Квартира расположена на 3-ем этаже 9-ти этажного дома 2015 года постройки.
Квартира очень светлая, отличается удачной, современной планировкой, общая площадь квартиры составляет 74,6 м.кв. (площадь по СНБ – 79,2 м.кв.), жилая – 44,8 м.кв., кухни — 11,7 м.кв., есть два вместительных шкафа-купе, много дополнительных зон для хранения одежды и вещей.
Телефон, интернет, кабельное телевидение.
В квартире современный, добротный ремонт. Во всех комнатах – окна ПВХ, пол – паркет из натурального дерева, коридор, кухня и сан.узел (раздельный) – плитка, потолки — натяжные, стены – обои, межкомнатные двери – массив дерева, входная металлическая дверь с повышенной звукоизоляцией. Две лоджии застеклены. Есть вместительный подвал.
Все выдержано в светлых сочных тонах.
Квартира теплая и уютная, полностью готова для проживания!
Чистый и аккуратный подъезд, хорошие соседи. Дом оборудован системой видеонаблюдения.
Во дворе –детская площадка (двор изолирован), достаточное количество парковочных мест в любое время суток.
Дом расположен в районе с развитой инфраструктурой: рядом школа с бассейном и большим стадионом, детские садики, амбулатория, много магазинов и супермаркетов (Евроопт, Алми, Радуга, Копеечка, др.), тренажерный зал, остановки общественного транспорта и многое другое.
Хороший вариант для комфортной жизни Вашей семьи!

ООО "Центр жилья"; УНП:591042500; Лицензия:выдана Министерством юстиции РБ от 27.02.2023 г. N 02240/456

Адрес: Гродно, улица Наполеона Орды, 17

Контактное лицо: Елизавета

  • +375333643920
  • post@myrealtor.by
Связаться с нами